Lot 0156 17765 W. Fulton St | New Homes for Sale in Goodyear, AZ
Est. Completion:Move-in Ready!
Single Family Home
$449,990
Move-in Ready!
-
1,971 sq ft
-
3 beds
-
2 baths
-
1 floor
-
2 bays
Sales Office Hours
Monday 10:00 AM - 06:00 PM
Tuesday 10:00 AM - 06:00 PM
Wednesday 10:00 AM - 06:00 PM
Thursday 10:00 AM - 06:00 PM
Friday 12:00 PM - 06:00 PM
Saturday 10:00 AM - 06:00 PM
Sunday 11:00 AM - 06:00 PM
Overview
Uncover smart living with our Plan 6 at El Cidro, where comfort and convenience collide. An inviting desert landscape sets the tone as you enter this ranch floor plan. The foyer leads you into the spacious great room, seamlessly connected with a breakfast nook and well-appointed kitchen featuring granite slab countertops and stainless steel appliances. The separate dining room offers the perfect entertainment area, as does the covered patio. Secluded to a corner of the house, the owner’s suite offers privacy with its en-suite bathroom boasting a dual-sink vanity and large walk-in closet. On the other side of the home, you'll find two secondary bedrooms separated by the home’s second full bathroom. Completing this incredible home are a laundry room, 2-bay garage with entry, and mud room for added functionality.
Impressive included features:
· 9’ ceilings throughout
· Front yard landscaping
· Ceramic tile flooring at entry, kitchen, all baths and laundry
· Granite slab counters in kitchen and bathrooms
· Century Home Connect smart home technology
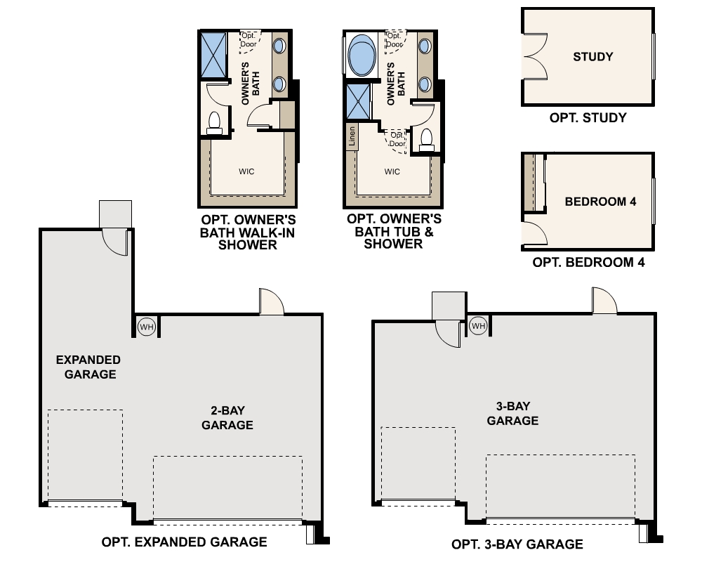
Options may include:
· Study or Bedroom 4 in lieu of dining room
· Owner’s bathroom walk-in shower
· Owner’s bathtub and shower
· Cabinets and sink in laundry
· 3-bay garage
· Expanded garage
· Extended covered patio
Floor Plan
Explore homesites at this community!
Get a feel for the neighborhood and find the right homesite for you.
Community Information
Tour Our Models Today!
Welcome to El Cidro, a new home community offering inspired new homes for sale in Goodyear, AZ. Conveniently located near I-10, Goodyear boasts small-city living combined with easy access to employment and entertainment hubs across the Phoenix metro area. Goodyear is a great place to live, offering an abundance of desirable dining, unique shopping and sporting events at the Goodyear Ballpark—a spring training stadium for the MLB's Cactus League—plus an abundance of recreational options like visiting Estrella Mountain Regional Park, hiking, fishing, horseback riding, mountain biking and more. You’ll also love the exceptional community amenities like trails, playgrounds and green space. El Cidro boasts some of the best homebuying sites in Goodyear, AZ—showcasing a versatile selection of single-story plans with open-concept layouts and stylish finishes. Explore these Maricopa County, AZ homes for sale and start your dream home journey today!
Community Amenities
- Walking trails throughout the community
- Large central open space
- Green areas throughout
- Playground
- Ramadas
- Picnic tables
- BBQ’s
- Gathering areas
- Sport courts
Shopping and Dining
-
Canyon Trails Towne CenterGoodyear, AZ 85338
-
Estrella MarketplaceGoodyear, AZ 85338
-
TargetGoodyear, AZ 85338
-
Fry's MarketplaceGoodyear, AZ 85338
-
SafewayGoodyear, AZ 85338
-
BJ's Restaurant & BrewhouseGoodyear, AZ 85395
-
Garden PizzaGoodyear, AZ 85338
-
Babbo Italian EateryGoodyear, AZ 85395
-
Wildflower Bread CompanyGoodyear, AZ 85395
-
StarbucksGoodyear, AZ 85338