The Powell | Residence 39206 | New Homes for Sale in Aurora, CO

Single Family Home

Est. Loading... /mo

$589,990

  • Square Footage

    2,343 sq ft

  • Bedrooms

    3 beds

  • Bathrooms

    3 baths

  • Number of Floors

    2 floors

  • Parking Bays

    2 bays

The Haven II Collection
20224 E 59th Ave,
Aurora, CO 80019

phone icon 303-557-2054
watch icon Sales Office Hours

Sales Office Hours

Monday 10:00 AM - 05:00 PM

Tuesday 10:00 AM - 05:00 PM

Wednesday 12:00 PM - 05:00 PM

Thursday 10:00 AM - 05:00 PM

Friday 10:00 AM - 05:00 PM

Saturday 10:00 AM - 05:00 PM

Sunday 11:00 AM - 05:00 PM

Overview


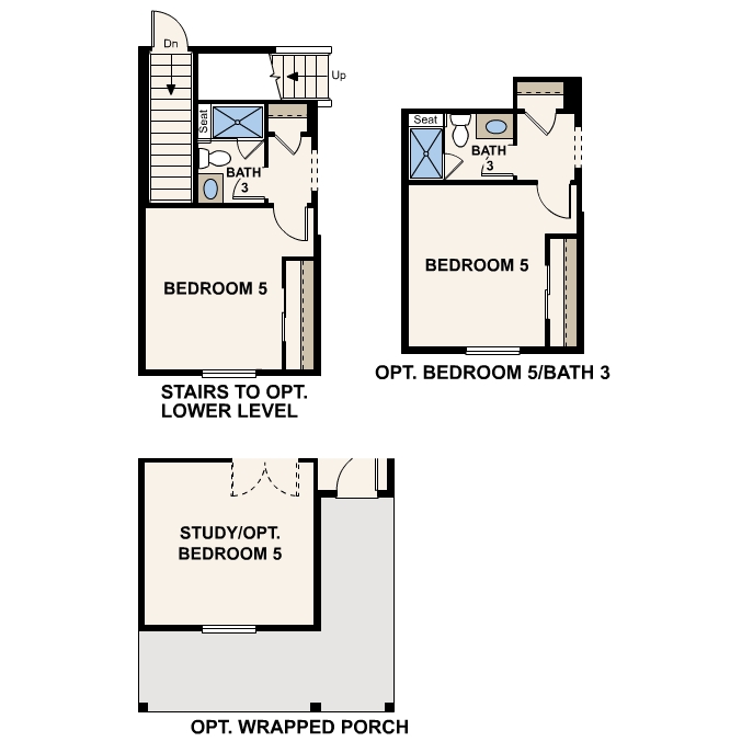
At the heart of the Powell plan, a well-appointed kitchen with a center island overlooking a spacious dining and great room area—boasting plenty of space for entertaining with direct access to the backyard. Additional main-floor highlights include a study and powder room off the foyer. Heading upstairs, you'll find a versatile loft with access to two secondary bedrooms—one with a walk-in closet—a full hall bath, and a lavish primary suite with a sprawling walk-in closet and attached bath.


*Prices, plans, and terms are effective on the date of publication and subject to change without notice. Map is not to scale. Square footage/dimensions shown is only an estimate and actual square footage/dimensions will differ. Buyer should rely on his or her own evaluation of usable area. Photos may not be of exact home. Depictions of homes or other features are artist conceptions. Hardscape, landscape, and other items shown may be decorator suggestions that are not included in the purchase price and availability may vary. Plans to build out this neighborhood as proposed are subject to change without notice. Visit centurycommunities.com for more details.© 2025 Century Communities, Inc.

 

Interactive Floor Plan

Explore more of what this plan has to offer!

Available Homes

Buy online today!

Lock in your dream home through our convenient and completely online Buy Now process.

  • Main Level Bedroom
    Fireplace

    5793 N. Ireland Court | Lot 72007

    Est. Completion:
    May. Move In.
    The Powell | Residence 39206

    Single Family Home

    Est. Loading... /mo
    $674,990
    • Square Footage 2,343 sq-ft
    • Bedrooms 5 br
    • Bathrooms 3 ba
    • Parking Bays 2 bays
  • Full Unfinished Basement
    Covered Patio

    5772 N. Indigo Rose Street | Lot 70407

    Est. Completion:
    Jun. Move In.
    The Powell | Residence 39206

    Single Family Home

    Est. Loading... /mo
    $679,990
    • Square Footage 2,343 sq-ft
    • Bedrooms 3 br
    • Bathrooms 3 ba
    • Parking Bays 2 bays

Explore homesites at this community!

Get a feel for the neighborhood and find the right homesite for you.

Community Information

The Haven II Collection at Painted Prairie

Century Communities is excited to announce its new construction homes in Painted Prairie, a planned community in Aurora, Colorado. This vibrant area offers residents an exceptional blend of outdoor beauty, modern amenities, and convenient urban access.

 

Abundant Green Spaces

At the heart of Painted Prairie lies the expansive 22-acre High Prairie Park, featuring playgrounds, picnic areas, gardens, and trails. Numerous pocket parks are thoughtfully integrated throughout the community, ensuring that every home is just steps away from serene outdoor spaces. 

 

Future Town Center

A dynamic Town Center is planned, set to feature curated restaurants, boutique hotels, fitness studios, markets, and entertainment options. This urban hub will provide residents with a local destination for dining, shopping, and community events, all within walking distance.Convenient Location

Painted Prairie offers easy access to major highways E-470 and I-70, facilitating straightforward commutes to downtown Denver and Denver International Airport. The community's location combines suburban tranquility with urban convenience.

 

Community Events and Lifestyle

Residents can enjoy a variety of community events, including farmers markets, neighborhood barbecues, and seasonal festivals, fostering a strong sense of belonging and engagement.

 

With its harmonious blend of natural beauty, modern amenities, and a welcoming atmosphere, Century Communities' at Painted Prairie offers an ideal setting for those seeking a balanced and enriched lifestyle.

Community Amenities

Explore exceptional new homes in Aurora at Painted Prairie by Century Communities! With an inspired lineup of floor plans—boasting contemporary open-concept layouts and desirable included features—this exciting new community offers something for everyone. These two-story homes feature open concepts, modern finishes, stainless steel appliances, and granite countertops.

 

Painted Prairie boasts a future community town center with restaurants, boutiques, fitness studios, and more. With frequent community events, 22 acres of playgrounds, parks, picnic spots, gardens, and trails connecting the neighborhood, Painted Prairie is perfect for fans of the great outdoors.

Easy access to E‑470 and I‑70 allows for seamless commutes to downtown Denver and Denver International Airport. There is also nearby shopping, diverse dining, and entertainment, as well as access to the great outdoor attractions of Colorado.

Schools

  • Aurora Highlands P - 8 | 303.326.3125 | https://highlandsp8.aurorak12.org/
  • Pitt Waller School ECE - 8 | 720.424.2840 | https://waller.dpsk12.org/
  • Vista Academy 6 - 12 | 720.423.7650 | https://vistaacademy.dpsk12.org/
  • Vista PEAK Preparatory 9 - 12 | 303.340.0121 | https://vistapeakprep.aurorak12.org/
  • Highline Academy Charter School P - 5 | 303.759.7808 | https://www.highlineacademy.org/

Shopping and Dining

  • Macy's
    Aurora, CO 80015
  • JCPenney
    Aurora, CO 80015
  • Bath & Body Works
    Aurora, CO 80015
  • H&M
    Aurora, CO 80015
  • Target
    Aurora, CO 80015
  • HomeGoods
    Aurora, CO 80015
  • ULTA Beauty
    Aurora, CO 80015
  • Dick's Sporting Goods
    Aurora, CO 80015
  • Costco
    Aurora, CO 80015
  • King Soopers
    Aurora , CO 80015
  • IKEA
    Aurora, CO 80015
  • Cedar Creek Pub
    Aurora, CO 80015
  • Ted’s Montana Grill
    Aurora, CO 80015
  • Jus Grill Restaurant
    Aurora, CO 80015
  • Casa Gutierrez Mexican Grill
    Aurora, CO 80015
  • Helga’s German Restaurant & Deli
    Aurora, CO 80015
  • Pho 888
    Aurora, CO 80015
  • The Urban Sombrero
    Aurora, CO 80015
  • Annette
    Aurora, CO 80015
  • In-N-Out Burger
    Aurora , CO 80015
  • CAVA
    Aurora, CO 80015

Homeowner reviews

See for yourself what our Century Communities homeowners are saying about their dream homes!

Request Information

Do You Currently Rent or Own
I'm a realtor required
Schedule a Tour
By clicking “Submit'” you consent to receiving calls and text messages from Century Communities, our affiliates, marketing partners and sales agents at the phone number provided, including messages sent using an automated system. Century Communities' privacy policy can be found at www.centurycommunities.com/privacy-policy. You understand that by providing your information to us, we will reach out to you via the information you provide us. Standard text message rates apply. Users can opt out of text messages at any time by texting STOP. ©2025 Century Communities, Inc.

 

This site is protected by reCAPTCHA.