This is a carousel with a large image above a track of thumbnail images. Select items from the thumbnail track or use the carousel controls on either side of the large image to navigate through the different images.
The Olympic | Residence 2530 | New Homes for Sale in Parker, CO
Single Family Home
$734,990
-
2,530 sq ft
-
3 beds
-
3.5 baths
-
2 floors
-
3 bays
Sales Office Hours
Monday 10:00 AM - 06:00 PM
Tuesday 10:00 AM - 06:00 PM
Wednesday 12:00 PM - 06:00 PM
Thursday 10:00 AM - 06:00 PM
Friday 10:00 AM - 06:00 PM
Saturday 10:00 AM - 06:00 PM
Sunday 11:00 AM - 06:00 PM
Overview
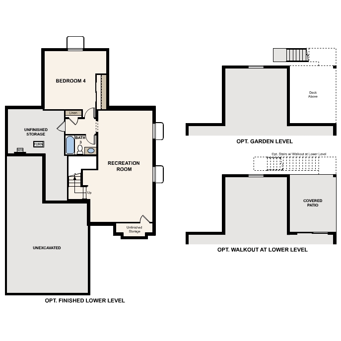
Welcome home to the Olympic. This winning plan has it all…and then some! An open kitchen sits at the heart of the home, steps away from a convenient service kitchen with a wraparound counter and a walk-in pantry. An inviting great room and a dining area flow seamlessly into the kitchen. A powder room and a large flex room—ideal for a home gym, craft room, or office—sit toward the front of the home. Upstairs, the spacious primary suite showcases a walk-in closet with built-in linen storage, as well as a luxurious deluxe bathroom. Two additional bedrooms flank and laundry and a bath. Transform the adjacent loft into your favorite space! Includes a finished basement with a rec room, bedroom, and bath, and a 3-bay garage!
Options Include:
- A garden-level covered patio
- Deck or covered deck off great room
- Bedroom 5 in lieu of loft
*Prices, plans, and terms are effective on the date of publication and subject to change without notice. Square footage/dimensions shown is only an estimate and actual square footage/dimensions will differ. Buyer should rely on his or her own evaluation of usable area. Depictions of homes or other features are artist conceptions. Hardscape, landscape, and other items shown may be decorator suggestions that are not included in the purchase price and availability may vary. No view is promised. Views may also be altered by subsequent development, construction, and landscaping growth. ©2026 Century Communities, Inc
Available Homes
Buy online today!
Lock in your dream home through our convenient and completely online Buy Now process.
-
The Olympic | Residence 2530
21023 Grays Peak Drive | Lot 1A0022
Est. Completion:
Jun. Move In.Single Family Home
Est. Loading... /mo$797,610-
2,530 sq-ft
-
4 br
-
3.5 ba
-
3 bays
-
-
The Olympic | Residence 2530
20927 Grays Peak Drive | Lot 1A0010
Est. Completion:
Sep. Move In.Single Family Home
Est. Loading... /mo$836,110-
2,530 sq-ft
-
3 br
-
3.5 ba
-
3 bays
-
Explore homesites at this community!
Get a feel for the neighborhood and find the right homesite for you.
Community Information
Century Communities is proud to offer new homes in Parker, Colorado with Legacy at Kime Ranch. This exceptional neighborhood showcases single-family floor plans with open-concept layouts and modern design, making it easy to find your dream home. Exciting features include our Century Connect® smart home system. Charming downtown Parker is nearby, and Denver Tech Center and Denver International Airport are relatively quick commutes. Contact us to today and find out what makes this community so special!
Community Amenities
In Legacy at Kime Ranch a bevy of fun amenities are available for all residents to enjoy! A barbeque with friends and family at the picnic tables, or enjoy the beautiful views the area has to offer including the famous Kime Ranch Cows while walking on several of the trails that intersect the community! The community park also houses playgrounds and ping pong tables as well, perfect for family outings and playing outdoors.
Shopping and Dining
-
SafewayParker, CO 80134Grocery
-
The Home DepotParker, CO 80134Home Improvement
-
Hobby LobbyParker, CO 80134Arts & Crafts
-
TargetParker, CO 80134Department Store
-
Best BuyParker , CO 80138Electronics Store
-
The Douglas | Kitchen & CocktailsParker, CO 80134Restaurant
-
India's RestaurantParker, CO 80134Indian Restaurant
-
Trapper's Bar & GrillParker , CO 80138Bar & Grill
-
La Baguette de NormandyParker, CO 80134Bakery
-
Parker GarageParker, CO 80138American Restaurant