This is a carousel with a large image above a track of thumbnail images. Select items from the thumbnail track or use the carousel controls on either side of the large image to navigate through the different images.
Lot 0089 1215 Brooks Ryan Run | New Homes for Sale in Lawrenceville, GA
Est. Completion:Jul. Move In.
$391,990
Jul. Move In.
-
1,842 sq ft
-
3 beds
-
2.5 baths
-
2 floors
-
2 bays
Azalea Square Townhomes
1215 Brooks Ryan Run,
Lawrenceville, GA 30043
Sales Office Hours
Monday 10:00 AM - 06:00 PM
Tuesday 10:00 AM - 06:00 PM
Wednesday 10:00 AM - 06:00 PM
Thursday 10:00 AM - 06:00 PM
Friday 01:00 PM - 06:00 PM
Saturday 10:00 AM - 06:00 PM
Sunday 12:00 PM - 06:00 PM
Overview
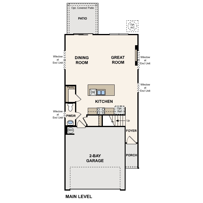
Introducing the Sierra—Century Communities’ newest and most versatile home design, thoughtfully crafted for modern living. This stunning two-story plan offers 3 spacious bedrooms, 2.5 bathrooms, and a flexible upstairs loft that can easily adapt to your lifestyle—perfect as a home office, playroom, media space, or cozy retreat.
The expansive Primary Retreat is a true sanctuary, filled with natural light and featuring a spa-inspired en-suite bathroom with dual vanities, a private water closet, and a massive walk-in closet. Upstairs secondary bedrooms are generously sized, providing comfort and privacy for family or guests.
On the main floor, you’ll find a chef-inspired kitchen boasting abundant cabinetry, a walk-in pantry, and an oversized center island ideal for casual dining or meal prep. The dedicated dining area flows seamlessly into the spacious family room, creating an open and inviting space that’s perfect for gatherings and everyday living.
With its blend of functionality, openness, and contemporary style, the Sierra is a place you’ll love to call home.
Explore homesites at this community!
Get a feel for the neighborhood and find the right homesite for you.
Community Information
Welcome to Azalea Square
Charming New Townhomes in Lawrenceville, GA
Discover easy living and timeless style at Azalea Square, a new community by Century Communities—one of the nation’s top 10 homebuilders. Nestled among the scenic rolling hills of Lawrenceville, GA, this thoughtfully planned neighborhood offers beautiful townhomes in a location that perfectly balances natural charm with city convenience.
Enjoy close proximity to downtown Lawrenceville’s local shops, parks, and dining destinations—plus everyday essentials just minutes from home. Featuring contemporary open-concept layouts, designer-selected finishes, and low-maintenance living, the homes at Azalea Square are built for modern comfort.
With resort-style amenities and picturesque surroundings, Azalea Square offers a unique blend of comfort, style, and community connection.
Community Highlights:
-
Modern 2-Story Townhomes with open-concept layouts
-
Designer Kitchens with included contemporary features
-
Low-Maintenance Living with HOA-managed landscaping
-
Resort-Style Amenities including a pool and more
-
Beautiful Natural Setting with rolling hills and mature trees
-
Close to downtown Lawrenceville dining, shopping & parks
Come home to Azalea Square—where scenic beauty meets modern living.
Community Amenities
Resort-Style Amenities at Azalea Square
Designed to complement your lifestyle, Azalea Square offers community amenities that bring relaxation, recreation, and everyday enjoyment just steps from home.
Cabana
A cozy, shaded retreat perfect for relaxing after a swim or catching up with neighbors. The cabana offers a comfortable space to unwind and enjoy the outdoors.
Pool
Beat the Georgia heat in the community pool—ideal for refreshing swims, laid-back weekends, or quality time with family and friends.
Pocket Park
Enjoy green space right within the neighborhood. The pocket park offers a peaceful spot for casual strolls, playtime, or a breath of fresh air.
Dog Park
Let your pup run, play, and socialize in the community’s fenced-in dog park, designed for off-leash fun and easy interaction with fellow pet owners.
Pond
Take in the view and relax by the tranquil community pond—a scenic backdrop for peaceful moments and quiet reflection.



Shopping and Dining
-
Mall of Georgia,
-
ALDI,
-
Publix,
-
Top Golf,
-
Kroger,
-
Marlow's Tavern,
-
Panera Bread,
-
Chilli's Grill & Bar,
-
Parkside District,