Lot 7155 4543 YOAKUM VALLEY | New Homes for Sale in Schertz, TX

Est. Completion:
Move-in Ready!
Wrangell - 3616 | Homestead

Single Family Home

Est. Loading... /mo

$644,990

Buy Now Est. Completion:
Move-in Ready!
  • Square Footage

    3,616 sq ft

  • Bedrooms

    5 beds

  • Bathrooms

    4.5 baths

  • Number of Floors

    2 floors

  • Parking Bays

    3 bays

Homestead
4543 YOAKUM VALLEY,
Schertz, TX 78108

phone icon 210-899-3005
watch icon Sales Office Hours

Sales Office Hours

Monday 10:00 AM - 06:00 PM

Tuesday 10:00 AM - 06:00 PM

Wednesday 10:00 AM - 06:00 PM

Thursday 10:00 AM - 06:00 PM

Friday 10:00 AM - 06:00 PM

Saturday 10:00 AM - 06:00 PM

Sunday 12:00 PM - 06:00 PM

Overview

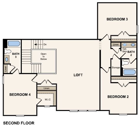
Exciting features make the Wrangell plan stand out from the crowd, starting with a convenient main-floor primary suite featuring a room-sized walk-in closet and a private bath. Adjacent, you’ll find a bright, open layout showcasing a great room, a dining area, and a large kitchen with an island and a walk-in pantry. A private study with a walk-in closet is also on this level. Upstairs, three bedrooms, two baths, and a versatile loft round out the plan. Includes a large covered patio and a 3-bay garage!

 

Additional home highlights and upgrades:

  • 42" gray kitchen cabinets, quartz countertops and backsplash
  • Luxury wood-look vinyl plank flooring in common areas
  • Stainless-steel appliances with gas cooktop
  • Additional recessed can lighting throughout home
  • Walk-in shower and garden tub in Primary bath
  • Added cabinets in laundry room
  • Black fixutures in all baths
  • Upgraded gas fireplace
  • Bed 5 with Bath 4 ILO Study
  • Quartz countertops and modern rectangular sinks in bathrooms
  • Landscape package with sprinkler system
  • Covered patio
  • Exceptional included features, such as our Century Home Connect® smart home package and more!

NOTE: Construction on this home may not yet be complete. See sales associate for details. Prices, plans, and terms are effective on the date of publication and subject to change without notice. Square footage/dimensions shown is only an estimate and actual square footage/dimensions will differ.  Buyer should rely on his or her own evaluation of usable area. Depictions of homes or other features are artist conceptions. Hardscape, landscape, and other items shown may be decorator suggestions that are not included in the purchase price and availability may vary. No view is promised.  Views may also be altered by subsequent development, construction, and landscaping growth.  ©2025 Century Communities, Inc

Interactive Floor Plan

Enjoy a closer look at what this plan has to offer!

Explore homesites at this community!

Get a feel for the neighborhood and find the right homesite for you.

Community Information

Homestead
MODEL OPEN!

 

Welcome to Homestead, a beautiful community offering inspired new homes for sale in Schertz, TX! Homestead showcases exceptional floor plans with access to incredible amenities, including scenic walking trails and parks, a pool, and state-of-the-art fitness facilities. Located minutes away from schools, shopping, and entertainment, this charming neighborhood also offers easy access to San Antonio and Austin. As one of the nation’s most trusted homebuilders, we’d be thrilled to help you discover your dream home here!

Community Amenities

  • Community park, playground, outdoor pool and open green
  • Easy access to I-35 and Loop 1604
  • Short drive to New Braunfels, Seguin and San Antonio
  • Close proximity to Veterans Park, Randolph Air Force Base and Fort Sam Houston
  • Near EVO Entertainment, Santikos Entertainment and more
  • Short drive to recreation at Schlather Park, Crescent Bend Nature Park, Natural Bridge Caverns, Guadalupe River, Schlitterbahn and more

Schools

  • Schertz-Cibolo-Universal City ISD
  • John A. Sippel Elementary School
  • Elaine S. Schlather Intermediate School
  • J. Frank Dobie Junior High School
  • Byron P. Steele High School

Shopping and Dining

  • The Forum at Olympia Parkway
    Selma, TX 78108
  • Walmart Supercenter
    Schertz, TX 78154
  • H-E-B Plus!
    Schertz, TX 78154
  • Four Oaks Plaza
    Schertz, TX 78154

Homeowner reviews

See for yourself what our Century Communities homeowners are saying about their dream homes!

Request Information

Do You Currently Rent or Own
I'm a realtor required
Schedule a Tour
By clicking “Submit'” you consent to receiving calls and text messages from Century Communities, our affiliates, marketing partners and sales agents at the phone number provided, including messages sent using an automated system. Century Communities' privacy policy can be found at www.centurycommunities.com/privacy-policy. You understand that by providing your information to us, we will reach out to you via the information you provide us. Standard text message rates apply. Users can opt out of text messages at any time by texting STOP. ©2025 Century Communities, Inc.

 

This site is protected by reCAPTCHA.